996 units
50
Commercial
Apartment
"Just 440meter walking distance to the JB CENTRAL
– only 5 minutes to CIQ and 8 minutes to the RTS"
Gen Sphere is a landmark freehold serviced apartment development strategically located just 440 meters from JB Sentral, making it the closest residential project to the CIQ and RTS. Designed for modern urban living, it offers unparalleled connectivity, smart dual-key layouts, and a comprehensive range of lifestyle facilities across four levels.
Whether you’re a homeowner, investor, or cross-border commuter, Gen Sphere blends location, convenience, and quality — all in one vertical community. With retail shops at your doorstep and seamless access to Singapore, Gen Sphere is more than just a residence — it’s a new way of living.
Enjoy long-term ownership with full property rights — no leasehold restrictions.
Only a short 5-minute walk to JB Sentral and an additional 260m to the upcoming Bukit Chagar RTS Link Station — seamless cross-border connectivity.
Planned integration with the existing pedestrian link bridge for effortless access to JB Sentral and CIQ.
4 retail shops located right below the residence, offering everyday essentials just an elevator ride
Within walking distance to banks, supermarkets, eateries, lifestyle services, and more.
Nestled in the heart of Johor Bahru with excellent connectivity to major highways, public transport, and Singapore.
Enjoy 4 levels of curated lifestyle facilities across 8 thematic zones — from wellness and recreation to social spaces and work-friendly environments, all designed to elevate your daily living.
ReZones: Core Zone, Wellness Zone, Leisure Zone, Active Zone, Social Zone
Zone: Retreat Zone
Zones: Aqua Zone, Retreat Zone
Zone: Fitness Zone
Rental
Dual-key 2 bed 2 bath – 459 sqft
Bedroom (1) Bathroom & Balcony
RM2000
Bedroom (2) Bathroom
RM1700
CAR PARK
RM350
TOTAL:
RM4050
SPA: RM718K | Loan 90% [35yrs 4.2%] Monthly Installment: RM2950++
Rental
Dual-key 2 bed 2 bath – 551 sqft
Bedroom (1) Share Bath
RM 1500
Bedroom (2) Share Bath
RM1000
Bedroom (3) Bathroom
RM1600
CAR PARK
RM350
TOTAL:
RM4650
SPA: RM856K | Loan 90% [35yrs 4.2%] Monthly Installment: RM3510++
Rental
Dual-key 3 bed 2 bath – 652 sqft (Foreigner eligible)
Bedroom (1) Bathroom
RM 1600
Bedroom (2) Share Bath
RM1300
Bedroom (3) Share Bath
RM1000
Bedroom (4) Share Bath
RM800
CAR PARK
RM350
TOTAL:
RM5050
SPA: RM1.01MIL | Loan 90% [35yrs 4.2%] Monthly Installment: RM4140++
Rental
Bedroom (1) Bathroom
RM 1600
Bedroom (2) Share Bath
RM1300
Bedroom (3) Share Bath
RM1200
Bedroom (4) Share Bath
RM1150
CAR PARK
RM350
TOTAL:
RM5700
SPA: RM1.12MIL | Loan 90% [35yrs 4.2%] Monthly Installment: RM4600++
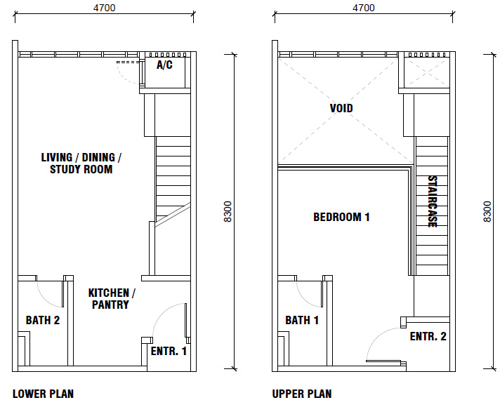
Duplex loft – 700 sqft (Foreigner eligible)
Bedroom
1
Bathroom (2)
2
Size
700sqf (65m²)
Tenure
Perpetual
Price
from RM 950,000
Have questions or want to schedule a private viewing? We’re here to help.
+60 10-800 3817
yapweyau@yahoo.com
Send us a message and our team will get back to you shortly. We are authorised agency. Whether you’re interested in unit availability, pricing, or a private tour, we’re here to help you every step of the way!
Copyright 2025 © MajesticGenSphere · Developed By Channel Soft Solutions